บ้านโมเดิร์น สำหรับในเมืองที่ดินแคบๆ
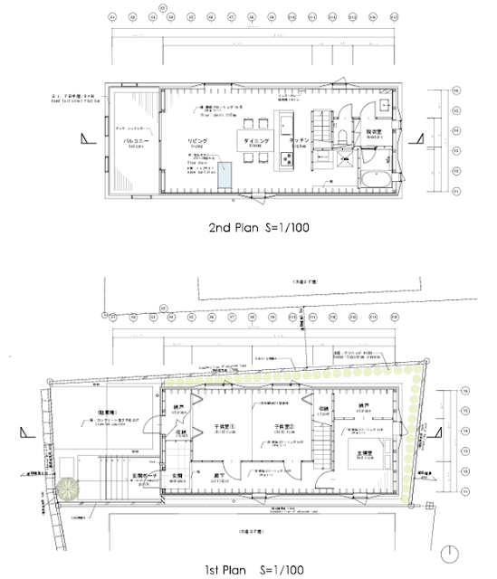
บ้านทาวน์โฮม 2 ชั้น ออกแบบทันสมัย ในเนื้อที่ 105.13 ตารางเมตร สร้างไว้ในประเทศญี่ปุ่น เมืองที่ทรัพยากรที่ดิน มีมูลค่าสูงมาก การก่อสร้างอาคาร บ้านเรือน จึงจำเป็นต้องเน้นแบบประหยัดพื้นที่ ลักษณะบ้านทรงสูง ดูโปร่ง หน้าบ้านออกแบบไว้เป็นบันไดทางเข้าบ้าน สูงกว่าระดับพื้นดิน เนื่องด้วย พื้นดินเป็นพื้นที่ต่างระดับ ส่วนหน้าของบ้านต่ำกว่าด้านหลัง การออกแบบด้านนอกจึงดูหลอกตา โดยด้านในทำการถมพื้นที่ให้เป็นระดับเดียวกันทั้งหลัง ผนังบ้านด้านข้าง ติดฉนวนกันความร้อน เพื่อการดูดซับความร้อมไม่ให้เข้าสู่ตัวบ้าน
สถาปนิก : Jun’ichi Ito Architect & Associates
แม้หน้าจะแคบ แต่ภายในไม่ได้ดูแคบตามเลย ด้วยความฉลาดในการเลือกใช้วัสดุและการออกแบบเส้นสายให้บ้านดูกว้างและลึก มีมิติอย่างน่าประทับใจ ตีกรอบไม้ทั้งด้านข้าง ด้านบน สันของไม้ช่วยหลอกตา เหมือนพื้นที่ที่มีอยู่ขยายออกกว่าเดิม อีกทั้งสีน้ำตาลเหลืองแบบอ่อน ๆ ให้ความสว่างและความอบอุ่นแก่บ้านได้เป็นอย่างดี
ในเรื่องของแสงสว่าง มีการดึงแสงธรรมชาติภายนอกเข้ามามีส่วนรวมภายในบ้าน เจาะช่องติดกระจกบนหลังคา และตรงบริเวณพื้นชั้นบน ให้แสงส่องจากบนสุดไปจนถึงล่างสุด ตรงส่วนนี้ต้องเลือกใช้กระจกที่มีความแข็งแรงมากเป็นพิเศษ สามารถรองรับน้ำหนักได้อย่างมั่นใจ เพิ่มความปลอดภัยในการใช้งาน









ความคิดเห็น
แสดงความคิดเห็น