Home
ออกแบบโดย : KDDH architects
ที่ตั้ง : SOUTH KOREA
พื้นที่ : 273 ตร.ม.
ถ่ายภาพโดย : Jihyun Choi
วันนี้เรามีไอเดียที่หลากหลายและน่าสนใจ ที่มาให้เพื่อนๆที่อยากจะสร้างสรรค์ผลงานบ้านในดีไซน์ที่ทันสมัย แต่ละหลังมีเอกลักษณ์และความโดดเด่นเฉพาะตัว ทั้งบ้านชั้นเดียว บ้านชั้นครึ่ง และบ้านสองชั้น กับการตกแต่งที่แตกต่างกันไป แม้บางหลังจะดูเรียบง่ายแต่ก็กลับมีเสน่ห์ชวนให้น่าสนใจ เรียกว่าสามารถสะท้อนบุคลิกของเจ้าของแต่ละคนได้เป็นอย่างดี เอาเป็นว่าหากใครกำลังวางแผนจะสร้างบ้าน รีโนเวทบ้านใหม่ แต่ยังคิดไม่ออกว่าจะดีไซน์บ้านเป็นสไตล์อะไรดี ลองไปดูพร้อมกันเลย
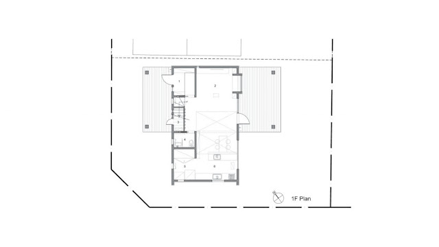
บ้านรูปตัว ‘T’ ทั้งด้านหน้าและด้านหลังยกระดับ บ้านหลังนี้สร้างด้วยโครงสร้างไม้น้ำหนักเบาในส่วนหน้ารูปตัว ‘T’
โดยมีพื้นที่ภายนอกขนาดใหญ่ที่ระดับพื้นดินโดยใช้กลูแลมที่มีความแข็งแรงในแนวตั้งสูงกว่าเมื่อเทียบกับคอนกรีต พื้นที่ภายใน 2 ชั้นแบ่งเป็นพื้นที่สาธารณะชั้น 1 และพื้นที่ส่วนตัวชั้น 2 และผู้ใช้จะรู้สึกได้ถึงพื้นที่ขนาดใหญ่ที่ชั้น 1 เมื่อเปิดประตูจะสัมผัสได้ถึงพื้นที่ขยายที่เชื่อมต่อโดยตรงกับภายนอก
ที่มา : archdaily
T-House บ้านตัวทีดีไซน์สวย ฟังก์ชั่นครบครัน

ออกแบบโดย : KDDH architects
ที่ตั้ง : SOUTH KOREA
พื้นที่ : 273 ตร.ม.
ถ่ายภาพโดย : Jihyun Choi
วันนี้เรามีไอเดียที่หลากหลายและน่าสนใจ ที่มาให้เพื่อนๆที่อยากจะสร้างสรรค์ผลงานบ้านในดีไซน์ที่ทันสมัย แต่ละหลังมีเอกลักษณ์และความโดดเด่นเฉพาะตัว ทั้งบ้านชั้นเดียว บ้านชั้นครึ่ง และบ้านสองชั้น กับการตกแต่งที่แตกต่างกันไป แม้บางหลังจะดูเรียบง่ายแต่ก็กลับมีเสน่ห์ชวนให้น่าสนใจ เรียกว่าสามารถสะท้อนบุคลิกของเจ้าของแต่ละคนได้เป็นอย่างดี เอาเป็นว่าหากใครกำลังวางแผนจะสร้างบ้าน รีโนเวทบ้านใหม่ แต่ยังคิดไม่ออกว่าจะดีไซน์บ้านเป็นสไตล์อะไรดี ลองไปดูพร้อมกันเลย
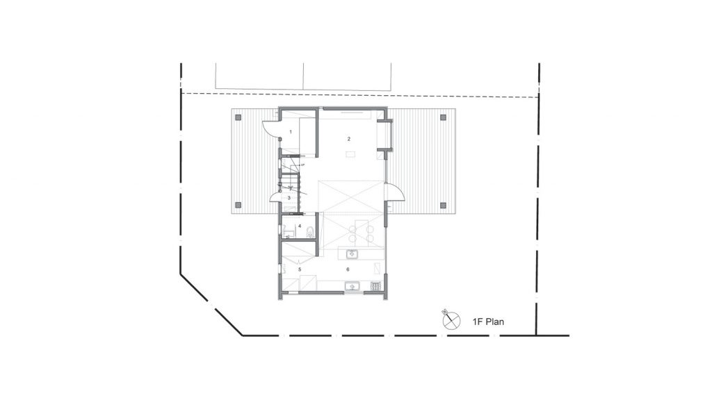
บ้านรูปตัว ‘T’ ทั้งด้านหน้าและด้านหลังยกระดับ บ้านหลังนี้สร้างด้วยโครงสร้างไม้น้ำหนักเบาในส่วนหน้ารูปตัว ‘T’
โดยมีพื้นที่ภายนอกขนาดใหญ่ที่ระดับพื้นดินโดยใช้กลูแลมที่มีความแข็งแรงในแนวตั้งสูงกว่าเมื่อเทียบกับคอนกรีต พื้นที่ภายใน 2 ชั้นแบ่งเป็นพื้นที่สาธารณะชั้น 1 และพื้นที่ส่วนตัวชั้น 2 และผู้ใช้จะรู้สึกได้ถึงพื้นที่ขนาดใหญ่ที่ชั้น 1 เมื่อเปิดประตูจะสัมผัสได้ถึงพื้นที่ขยายที่เชื่อมต่อโดยตรงกับภายนอก


















ความคิดเห็น
แสดงความคิดเห็น